1조원 프로젝트 ‘디큐브시티’에 한숨쉬는 입주자들

서울--(뉴스와이어)--2007년 부푼 꿈을 안고 청약통장을 통해 D산업이 분양한 서울 구로구 신도림동 디큐브시티 주거동 아파트를 분양 받은 직장인 김진규 씨(가명)는 최근 입주를 앞두고 심각한 슬픔과 절망에 빠져있다.

김 씨는 향후 신도림의 발전가능성과 신도림전철역에 가깝고 호텔, 백화점, 뮤지컬센터 등 복합단지라는 장점 때문에 분양가상한제 실시직전에 3.3㎡당 2100만원이라는 고분양가로 전용면적 84.96㎡(구 36평형)을 분양 받았다. 분양 당시 모델하우스에서의 직원들의 관리비절감과 상업동 건물에 대한 조망 및 일조권에 전혀 지장이 없다는 확답을 듣고 깔끔한 인테리어가 맘에 들어 계약을 하였다.

4년이 지난 지금 분양 당시의 부푼 꿈은 단지 꿈에 불과하였다. 2011년 6월 5일 ‘내 집 방문의 날’이라는 미명하에 실시된 사전점검 날 아파트입구에 들어서는 순간 D산업이 고용한 용역업체직원들이 험한 인상을 쓰며 입주자들을 통제하였다. 얼굴이 굳어진 김 씨는 안내원의 도움을 받아 들어선 자신의 집을 본 순간 입을 다물 수가 없었다.

깨진 타일과 벽지, 벌어진 문틈, 닫히지도 않는 창문 등 마감문제보다 더 놀라운 것은 분양 시 조망 및 일조권에 아무런 지장이 없다던 D산업 직원들의 말과는 달리 모델하우스의 모형보다 훨씬 가까워진 상업동으로 인해 하루 종일 해도 구경할 수 없을 정도로 어두운 실내를 보며 이게 과연 주거를 위한 공간 인가하는 자괴감에 빠져들었다.

분양안내문에는 ‘신도림을 대표하는 명가의 가치, 과학이 만들어낸 명품스타일 주방, 호텔이 부럽지 않은 디자인 욕실, 젊은 리더들의 3분도시, 주거와 문화, 쇼핑, 자연을 한번에 누립니다.’ 등 온갖 미사여구로 화려하게 포장되었으나 이게다 소비자를 현혹시키기 위한 D산업의 행태였다는 것을 깨달은 후 분노, 슬픔, 절망 등 온갖 부정적인 감정에 휩싸일 수 밖에 없었다.

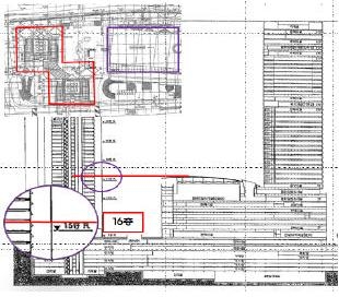
크게 실망한 김 씨는 같은 고민으로 모인 입주자모임에 참여하여 현안을 해결할 방법을 모색하고 있다. 일조와 조망권문제로 고민하는 세대들과 모임을 갖던 중 분양 직후 상가동 확장 설계변경으로 분양 당시보다 상가동의 위치가 주거동쪽으로 15m 이상 접근하였고, 높이도 계약 당시 16층에서 23층까지 높아져 있음을 확인하였다.

이러한 설계변경에 의문을 품은 김 씨는 관할인 구로구청 주택과에 신도림동 디큐브시티 주택건설공사와 관련하여 분양 당시 상가동의 높이를 15층 정도로 예상하여 건축허가를 받았으나, 분양 후 설계변경을 거쳐 아파트의 23층 정도의 높이로 공사를 진행하고 있으므로, 사업승인일, 분양승인일, 상가동 허가일과 분양자의 사전 동의 절차 없이 설계변경이 가능한지 여부에 대하여 질의하였으나 담당공무원인 김모 씨는 구로구청장 이모 씨의 명의로 “디큐브시티 주택건설 사업은 2007.3.6일 사업승인과 2007.7.16분양승인, 2008.7.16일 상가동 설계 변경을 득하였으며, 상가동의 설계변경은 주택법 시행규칙 제11조에 규정하고 있는 사업계획변경 제한이나 입주예정자의 동의를 받아야 하는 사항이 아님을 알려 드립니다”라고 답변하였다.

다른 입주예정자들의 질의에도 그대로 복사된 답변이 온 것에 대해 주택법 11조를 자세히 검토하였는데, 디큐브시티 상업동은 바다면적 730평의 증축뿐만 아니라 위치도 아파트 쪽으로 근접하게 바뀌었으므로 입주민의 동의를 반드시 필요로 하는 상황이었고, 건축물이 아닌 부대시설 및 복리시설의 설치기준의 변경 중 그 설치기준이상으로의 변경 시 동의가 필요 없으나 입주민 공원이 상당부분 축소되었고, 이는 설치기준이상이 아니므로 이 역시 입주민의 동의를 필요로 하는 상황이었다.

D산업과 구로구청의 유착관계를 의심할 밖에 없었던 김 씨는 또 하나의 충격적인 소식을 접하였는데, D산업에서 구로소방서장으로 근무하던 사람을 지난 3월 고문으로 영입한 사실이었다. 준공검사를 앞둔 시점에서 요즘처럼 공무원의 비리나 전관예우를 사회문제시하는 시점에서 이 같은 일이 벌어진다는 사실에 분노를 금할 수가 없었다.

실의에 빠져있던 김 씨에게 실낱 같은 희망의 불씨가 찾아왔는데, 공사대금을 못 받은 샷시창호 시공업체 박모 사장의 양심제보였다.

박모 사장은 “모델하우스 시공과는 다르게 세대별 교체가 가능한 독립 유니트 창호에서 2개층의 통합 유니트 창호로 바뀌었는데, 이는 화재 또는 기타 문제발생시 2개층을 한꺼번에 뜯어야 하는 문제가 생깁니다. 또 모델하우스 창호엔 중간크로스바가 있었는데 실재 시공에는 없습니다. 고층빌딩의 창문을 열 때 안전을 담보할 수 있는 역할을 하는 난간대가 없어 입주민의 안전생활을 보장할 수 없으며 심리적으로도 불안감을 유발합니다. 그리고 대형 평형 모델하우스에는 2중창으로 시공해야 하나 싱글창 시공으로 시공 사가 비정상적인 방법으로 차익을 남겼습니다. 설계도에 창호 폭은 250mm 였으나 실제로는 275mm적용되어 바닥면적이 줄게 되었으며, 창호내장의 경우에도 16 mm복층유리로 되어야 하는데, 8.43 mm 유리로 시공되고 반강화 유리가 아니므로 파손 시 주변에 있는 아이들의 큰 부상이 우려됩니다”라고 언급하였다.

이 같은 제보에 힘을 얻은 김모 씨와 입주자모임 대표단은 이 모 구로구청장과 이 문제에 대해 심도 있는 논의를 거쳤고, 구청장이 주선한 D산업 관계자와의 협상을 하게 되었다. 지난 6월 17일 첫만남에서 하자 및 불만사항에 대한 처리 및 일조권, 조망권 피해 주민의 피해는 보상을 검토하고 입주와 관련한 입주예정자의 고통분담을 적극검토하며, 마감공정문제에 대해 2011년 6월 20일 현장에서 전문가 대동하여 확인한다는 협의를 하였다. 하지만 D산업은 6월 20일 현장점검을 직원들을 이용하여 저지하였는데, 시공불량을 제보한 박모 사장이 내부관련자라는 이유 등을 들어 협상을 단절하였다.

위의 김모 씨의 사례처럼 건설사들의 아파트 분양 시와 준공 전 입주자동의를 필요한 설계변경을 빈번하게 진행하고, 모델하우스의 자재와 다른 저급자재로의 교체시공이 빈번하게 일어나고, 그 피해는 고스란히 수분양자들에게 돌아간다. 또한 이 같은 인허가사항을 각종 이해관계를 통해 묵인한 관할 관청의 안일한 태도에 경종을 울리지 않을 수 없다.

에너지 기업의 유통강자의 꿈이라는 캐치프레이즈 아래 1조원의 배팅을 한 D산업이 아파트 주거동 입주민의 피눈물과 허무하게 무너져 내린 꿈에도 불구하고 자신들의 꿈은 실현할 수 있을지 그 귀추가 주목된다.

디큐브입주예정자모임 개요
서울 구로구 신도림동에 신축중인 디큐브시티 입주 예정자들의 모임으로, 2007년 8월 분양 후 결성되어 활동해 오고 있는 중이며 2011년 7월부터 입주가 예정되어 있고 입주 후에는 자치 관리회 모임으로 전환 예정인 아파트 입주자들의 자발적 모임이다.

http://cafe.daum.net/dcubecity

연락처

디큐브입주예정자모임
홍보담당 남기옥
010-3124-1165

국내 최대 배포망으로 귀사의 소식을 널리 알리세요